八王子市北野台2丁目 新築戸建 東京都八王子市北野台2丁目|5,080万円の新築一戸建て|エイトホーム
| 価格 | 5,080万円 ![]() |
||||
|---|---|---|---|---|---|
| 所在地 | 東京都八王子市北野台2丁目
この地域周辺の物件を見る |
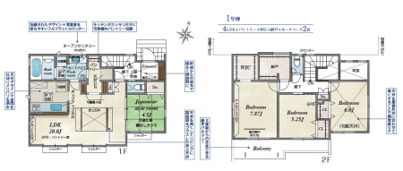
土地面積 | 185.86m² (56.22坪) | 建物面積 | 107.62m2 |
| 築年月 | 2026年6月築 | 間取り | 4LDK (-) | ||
| 交通 |
京王線 北野 バス12分 停歩3分
|
||||
| 特徴 |
|
|---|---|
| セールスコメント | - |
| 採光面 | - | 構造/階数 | その他/-階建 |
|---|---|---|---|
| 建ぺい率 | -(%) | 容積率 | -(%) |
| 駐車場 | - | 現況/引渡し | -/- |
| 土地権利 | - | 私道負担面積 | - |
| 接道状況 | - | 用途地域 |
第一種低層住居専用地域
|
| セットバック | - | 法令上の制限 | - |
| 地目 | - | 地勢 | |
| 建築確認番号 | 都市計画 | - | |
| 取引態様 | 仲介 | ||
| 情報更新日 | 2026年03月03日 | 次回更新日 | 2026年03月17日 |
| 小学校区 | 八王子市立中山小学校 (東京都八王子市) この学区の他の物件を見る |
中学校区 | 中山中学校 (東京都八王子市) この学区の他の物件を見る |
|---|
| 価格 | 万円 | ||
|---|---|---|---|
| 年利率 | % |
||
| ボーナス払い | 返済年数 | ||
| 頭金 | 直接入力する | 万円 | |

毎月のご返済額 |
ボーナス(×年2回) |
物件価格5,080万円 |
![]() |
![]() |
八王子市北野台2丁目
2880万円〜5499万円 |
-